House Plans,
Units,
Extensions,
Permits & Town Planning

If you can dream it,
We can make it a reality.

171 Design is a Melbourne-based company that can provide drafting services and building design solutions for any type of project – large or small, commercial or residential, new build or renovation.

about 171 designs

Who we are

171 Designs is a fresh new start for an established company that began many years ago as Action Drafting. We have the experience and expertise to ensure you get the building you want, but we’ve also been around long enough to understand the true meaning and value of personal service. It’s not just about bricks and mortar, it’s also about people.

What we do

Whether you want a contemporary look, traditional styling, or something in between, we can design it for you. Our team of experienced designers and draftspeople work across the Melbourne metro area, and are happy to visit you at home, at work or on-site, where we will advise the best way of approaching your building project.

Why us?

171 Design uses cutting-edge design technology backed up by old-fashioned personal service. When you choose 171 to design your extension, renovation, new home or commercial development, you will only deal with experienced, trusted professionals who will listen to your ideas and provide the best advice possible to help turn those ideas into bricks and mortar.

Our Design Process

From Start To Finish

Building projects have a reputation for being costly and problematic but starting with a good design helps to prevent later difficulties.

The thought of producing your own design from scratch may seem daunting, but it helps if you know what to expect. The design process can vary from project to project, but rest assured that the 171 team will be on hand to provide guidance and support.

Our Services

Drafting and building design solutions

New Homes

Building your own home is a dream for many people, but the dream can so easily become a nightmare. 171 Design will get you off to the best start possible by designing house plans that suit both you, your lifestyle and your site.

Renovations

Renovation is all the rage, but to get it right you must start with a good design. Whether you want to make major structural alterations, or simply update a room or two, 171 will help you find the right solution to your problems.

Extensions

If you have the room, an extension can be the best way to create more floor space.171 Design can ensure your extension blends seamlessly with your existing building, as well as being well-suited to your site and the local neighbourhood.

Units

You don’t have to compromise on design just because your space is limited. In fact, a small space can present the most difficult design challenges. The team at 171 will ensure you get the most out of your limited space with a functional design.

Subdivisions

These type of developments present special challenges. 171 Design can help you navigate the regulations governing subdivision and multi-unit development. We will ensure your design is sympathetic to the existing environment.

Planning

171 staff have years of experience dealing with the complex, confusing, ever-changing regulations that govern planning and building permits. We are familiar with all aspects of the Res Code and local council regulations.

Medical

Any good building starts with a good design, and large commercial or industrial spaces are no exception. 171 can bring our wealth of experience to all types of commercial and industrial building projects, including:

  • Medical centres
  • Childcare centres
  • Doctors surgery's
  • Dental clinics
Commercial

Designing a large-scale commercial or industrial building doesn't mean the service should be impersonal. We will work closely with you and provide the same respectful, attentive service that any private client should expect.

  • Warehouses
  • Office developments
  • Community spaces
  • Business parks
Consultation

You might not need a drawing at all, you might need help choosing a contractor, navigating council regulations or finding an accredited specialist. We can put you in touch with:

  • Draftspeople & CAD operators
  • Surveyors
  • Energy raters
  • Structural & civil engineers
  • Soil testers

Recent Projects

We have completed many exciting projects

Wantirna

858 Project

Bentleigh

Dover

Ivanhoe

Mitcham

Silverton

Somerset

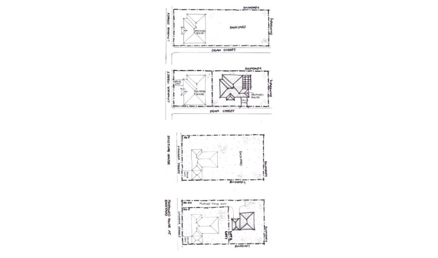
Example Subdivision

Example Existing Floorplan

Example Proposed Floorplans

Example Proposed Elevations

testimonials

what people say about us

One7One Designs were very helpful and creative in designing a home that suits mine and my family’s needs, thank you!

Don Anderson, Wantirna South

I had visions of what I wanted out of my new home, but One7One Designs gave me something truly spectacular and were a pleasure to deal with!

Tina Jennings, Ivanhoe

contact us

Call us on (03) 8805 1700, or send this form:

  • 171 Stud Rd, Wantirna 3152 Victoria